Intu Nottingham


Infrastructure upgrade works comprising chilled water system optimisation, cooling tower replacement, BMS renewal, and a ground source heat rejection package, delivered to improve operational control, energy efficiency, and tenancy metering.

Find Out More

Major Upgrade of Infrastructure Services


Client: Intu

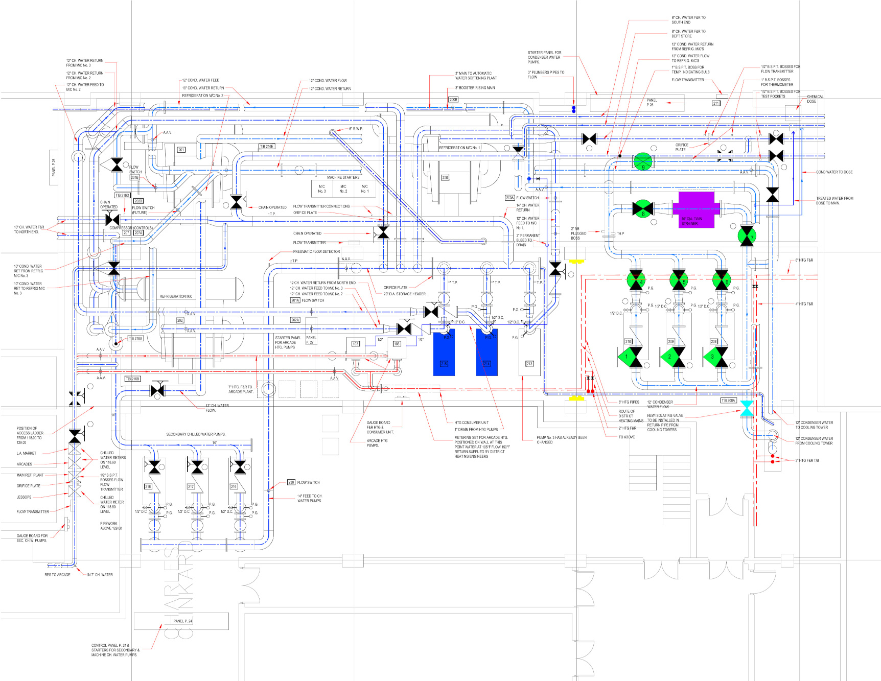
John Noad Ltd was appointed to deliver a strategic upgrade of critical infrastructure systems at the Victoria Shopping Centre, Nottingham. The phased program encompassed enhanced thermal efficiency, environmental resilience, tenant metering accuracy, and improved control capability — executed without disruption to retail operations. Works included chilled water upgrades, new cooling towers, a geothermal fallback system, and replacement of BMS controls.

Project Details & Design Wins

Core Deliverables That Set the Standard


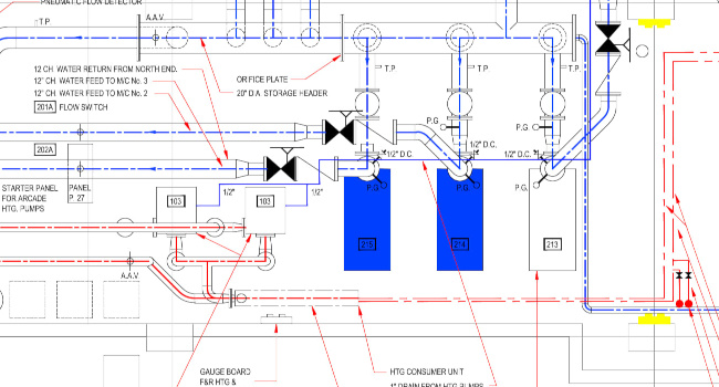
Chilled Water System Upgrade

Replacement of legacy pumps, valves, and inverter-driven motor controls to improve efficiency and reliability; installation of Offgen/MID-compliant heat meters per tenancy for transparent billing.

Cooling Tower Replacement

Demolition of three aging cooling towers and installation of quieter, more efficient units with integrated water treatment, new steel supports, and sound attenuation, aligned with Trane chiller configurations.

Controls and BMS Renewal

Replacement of Trane Tracer Summit control package with a modern BMS incorporating plant graphics, remote access, and tenancy submetering; supports integration with future expansion.

Geothermal Heat Rejection Package

Deployment of an open-loop ground source cooling contingency with abstraction and recharge wells, inverter-driven pumps, and heat exchangers to maintain cooling capacity where rooftop towers are unavailable.

Contact Us


Ready to start your next project with us? Send us a message and we will get back to you as soon as possible!